BXI Builingual System started translating.|
標準仕様
|
オプション
|
||
|
主骨
|
SUS 304
|
現場組立式
|
|
|
架台
|
構形鋼
塗装 ポリエステル仕上げ |
||
|
外装材
|
ダブルスキンパネル
ガルバリウム鋼板(1.0t+1.0t) 断熱材 ロックウール 80kg/㎥ パネル厚 50t |
ダブルスキンパネル
亜鉛メッキ鋼板 外面パウダーコート塗装 内外面共 SUS 304 |
|
|
送風機
|
送風機
|
後方湾曲オーブンホイールタイプ~プラグファン
|
|
|
風量調整
|
インバーター
|
||
|
電動機
|
保護型式
|
全閉外扇型
|
|
|
電源
|
3相 200V 50/60Hz
|
異電圧仕様
|
|
|
コイル
|
チューブ
|
銅管3/8
|
|
|
フィン
|
アルミニューム板(アクリル樹脂コーティング)
|
||
|
ヘッダー
|
銅管、絶縁フランジ付
|
||
|
ケーシング
|
SUS
|
融解亜鉛メッキ鋼板
|
|
|
空気試験
|
380psi(26.76kg/㎠)
|
高圧コイルも製作
|
|
|
ドレンバン
|
SUS 304
|
||
|
加湿器
|
気化式
|
高圧スプレー、蒸気その他も対応
|
|
|
フィルター
|
プレ
|
AFI 40%
|
AFI 80%
|
|
メイン
|
NBS 65%
|
NBS 90%
|
|
|
防振
|
ファン部スプリング式
|
||
|
型番
|
風量(CMH)
|
列数
|
冷却能力(kW)
|
モーター動力(kW)
|
|
606
|
2600
|
3
|
7
|
1.5
|
|
906
|
4000
|
3
|
12
|
2.2
|
|
909
|
6150
|
3
|
18
|
3.7
|
|
1209
|
8200
|
3
|
24
|
7.5
|
|
1212
|
11100
|
3
|
33
|
7.5
|
|
1512
|
13700
|
3
|
41
|
7.5
|
|
1515
|
17200
|
3
|
52
|
11
|
|
1815
|
21200
|
3
|
64
|
11
|
|
1818
|
25000
|
3
|
75
|
15
|
|
2118
|
29800
|
3
|
90
|
15
|
|
2121
|
34700
|
3
|
105
|
11×2
|
|
2421
|
40000
|
3
|
121
|
11×2
|
|
2424
|
46000
|
3
|
139
|
11×2
|
|
型番
|
風量(CMH)
|
列数
|
冷却能力(kW)
|
モーター動力(kW)
|
|
606
|
2600
|
5
|
16
|
1.5
|
|
906
|
4000
|
5
|
26
|
2.2
|
|
909
|
6150
|
5
|
41
|
3.7
|
|
1209
|
8200
|
5
|
55
|
7.5
|
|
1212
|
11100
|
5
|
74
|
7.5
|
|
1512
|
13700
|
5
|
92
|
7.5
|
|
1515
|
17200
|
5
|
115
|
11
|
|
1815
|
21200
|
5
|
142
|
11
|
|
1818
|
25000
|
5
|
168
|
15
|
|
2118
|
29800
|
5
|
200
|
15
|
|
2121
|
34700
|
5
|
233
|
11×2
|
|
2421
|
40000
|
5
|
269
|
11×2
|
|
2424
|
46000
|
5
|
310
|
11×2
|
|
型番
|
風量(CMH)
|
列数
|
冷却能力(kW)
|
モーター動力(kW)
|
|
606
|
2600
|
7
|
34
|
1.5
|
|
906
|
4000
|
7
|
54
|
2.2
|
|
909
|
6150
|
7
|
84
|
3.7
|
|
1209
|
8200
|
7
|
112
|
7.5
|
|
1212
|
11100
|
7
|
151
|
7.5
|
|
1512
|
13700
|
7
|
187
|
7.5
|
|
1515
|
17200
|
7
|
235
|
11
|
|
1815
|
21200
|
7
|
289
|
11
|
|
1818
|
25000
|
7
|
341
|
15
|
|
2118
|
29800
|
7
|
407
|
15
|
|
2121
|
34700
|
7
|
474
|
11×2
|
|
2421
|
40000
|
7
|
547
|
11×2
|
|
2424
|
46000
|
7
|
629
|
11×2
|
|
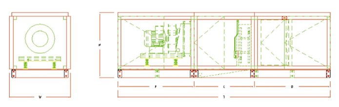
型番
|
風量(CMH)
|
W
|
H
|
F
|
C
|
D
|
T
|
|
606
|
2600
|
790
|
852
|
985
|
780
|
985
|
2750
|
|
906
|
4000
|
1095
|
852
|
985
|
780
|
985
|
2750
|
|
909
|
6150
|
1095
|
1157
|
985
|
780
|
985
|
2750
|
|
1209
|
8200
|
1400
|
1157
|
1210
|
780
|
985
|
2975
|
|
1212
|
11100
|
1400
|
1462
|
1210
|
780
|
985
|
2975
|
|
1512
|
13700
|
1705
|
1462
|
1210
|
780
|
985
|
2975
|
|
1515
|
17200
|
1705
|
1767
|
1395
|
780
|
985
|
3160
|
|
1815
|
21200
|
2010
|
1767
|
1395
|
780
|
985
|
3160
|
|
1818
|
25000
|
2010
|
2072
|
1395
|
780
|
985
|
3160
|
|
2118
|
29800
|
2315
|
2072
|
1395
|
780
|
985
|
3160
|
|
2121
|
34700
|
2315
|
2377
|
1395
|
780
|
985
|
3160
|
|
2421
|
40000
|
2620
|
2377
|
1395
|
780
|
985
|
3160
|
|
2424
|
46000
|
2620
|
2682
|
1395
|
780
|
985
|
3160
|